Zde můžete svůj systém E-Chain® nakonfigurovat individuálně. Všechny zadané hodnoty a změny se projeví v seznamu dílů umístěném na konci této stránky.
Série E333.32 - Řetěz pro 3 směry pohybu
1. Oddělitelné montážní konzoly KMA s integrovaným odlehčením tahu
2. Patentovaná konstrukce tlačítka
3. Montáž a demontáž jsou možné na jakémkoli místě
4. Kombinace různých poloměrů ohybu a směrů pohybu
5. Konstrukce „easy“ umožňuje pohodlné plnění ze 2 stran: Jednoduše vtlačte kabel podél vnitřních a vnějších poloměrů
6. 3osé pohyby pro mnoho typů strojírenství
7. Možné robotické aplikace
8. Vítěz ceny iF-Design
*V montovaných řetězech e-chain® série E333 dvojité poloměry ohybu
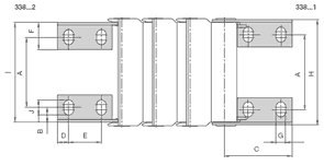
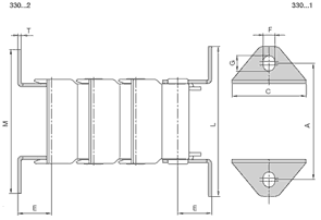
Pojezd: S
Rozteč: 14,5mm
Články/m: 69 (1000,5 mm)
Rozměr E: 10 mm
Ba: 34 mm
Délka řetězu: S/2 + K